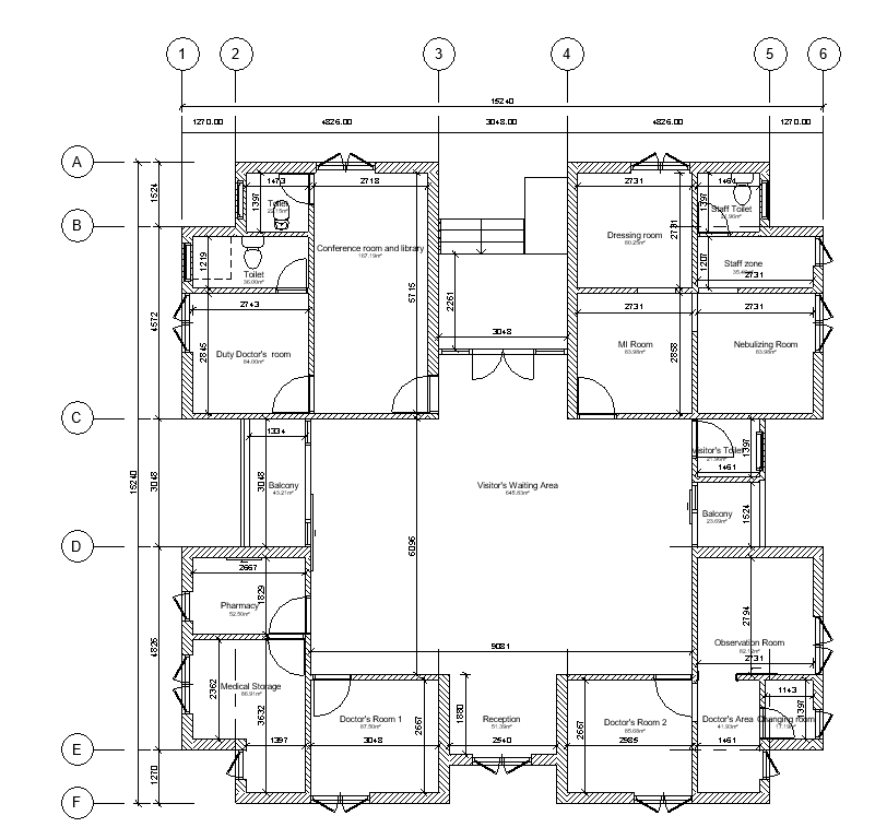
Durmut STH Clinic